Segítőkész ügyfélszolgálat: Az asztalosoknak
IS
mi segítünk
+36-1/300-9030
Ft (HUF)
EUR - €
Bútorvasalatok
Fogantyúk és fogasok
Fogantyúk
Bútorgombok
Fogasok
Süllyesztett fogantyúk
Fogantyú profilok
Könyvtámaszok
Tartozékok fogantyúkhoz
Pántok
LEGKERESETTEBB kivetőpántok és talpak
Ráütődő pántok
Félig ráütődő pántok
Közézáródó pántok
Szögben álló pántok
Speciális pántok
Fogantyú nélküli nyitómechanizmusok
Asztallábak, állítható lábak, kerekek
Asztallábak
Bútorlábak
Állítható bútorlábak
Állítható konyhai lábak (szintezőlábak)
Szokli / lábazati takaró előlap
Kerekek
Csúszótalpak
További kategóriák
Fiókrendszerek
H BOX (CEMUX)
STRONGBOX
BLY PRO SLIM BOX
STRONGMAX
RIEX fiókrendszerek
BLUM fiókrendszerek
HETTICH fiókrendszerek
Fióksínek
Kerekes fióksínek
Golyós fióksínek
Rejtett fióksínek
LED világítás
LED szalagok
LED-profilok
LED transzformátorok
LED mozgásérzékelők és kapcsolók
LED távirányítók
LED kiegészítők és tartozékok
Konyhai vasalatok
Evőeszköztartók és csúszásgátló betétek
Szemetesek és sorterek
Kamraszekrények
Konyhai sarokszekrények
Konyhai alsó szekrények
Konyhai felső szekrények
Konyhai világítás
További kategóriák
Gardrób vasalatok
Ruhaliftek
Ruha rudak
Kihúzható nyakkendő-, öv- és nadrágfogas
Cipőtartók és kosarak
Szennyestartók
Szekrény vasalatok
Felnyíló mechanizmusok
Folyékony gázos felnyíló mechanizmusok
Lenyíló mechanizmusok
Egyéb mechanizmusok szekrényekhez
Függesztő vasalat
Tartozékok szekrényekhez
Tolóajtó szekrényekhez
Sevroll tolóajtó szettek
Felső vezetéses tolóajtók
Alsó vezetéses tolóajtó vasalatok
Csavarok és összekötő vasalatok
Csavarok, tiplik és konfirmátok
Spax csavarok
Összekötő vasalat polcokhoz és korpuszokhoz
Tiplik, lamellák és foltjavító anyagok
Tartóelemek, sarokvasak és lemezek
Takarósapkák
Egyéb kiegészítők és vasalatok
További kategóriák
Harmonikaajtó szekrényekhez
Felső vezetéses harmonikaajtó vasalatok
Alsó vezetéses harmonikaajtó vasalatok
Hawa Concepta a Folding Concepta
Asztal- és ágyvasalat
Ágyemelők
Ágyvasalat
Asztalvasalatok
Forgótárcsák
Munkalapokhoz
Kötőelemek munkalapokhoz
Profilok munkalapokhoz
Szellőzőrácsok
Bútorzárak
Mechanikus zárak cserélhető hengeres betéttel
Mechanikus zárak beépített hengeres betéttel
Mechanikus zárak számlappal
Elektromos bútorzárak
Egyéb mechanikus zárak és tartozékok
Szerszámok
Irodai vasalatok
Irodai konténerek és szekrények
Irodai asztalokhoz
Asztalszerkezetek
Kábelkivezetők
Konnektorok
Irodai kiegészítők
Systema top 2000 és SysTech
Sablonok, Minták és Katalógusok
Sablonok
Minták
Katalógusok
Bútortisztítók, ragasztók, kemikáliák
Professzionális bútortisztítók
Faragasztók
Szilikonok, szerelési ragasztók
Akciós termékek
Épület vasalatok
Tolóajtó vasalatok falra
Pajta tolóajtó
Vasalatok fa tolóajtókhoz falra
Vasalatok üveg toloajtokhoz falra
Tolóajtó vasalatok mennyezetre
Vasalatok fa tolóajtókhoz mennyezetre
Vasalatok üveg tolóajtókhoz mennyezetre
Tartozékok mennyezeti tolóajtókhoz
Kilincsek
Ajtó fogantyúk
Kilincsek beltéri ajtókhoz
Ajtó pántok
Ajtó zárak
Harmonikaajtó vasalatok beltéri ajtókhoz
StrongLine Barnio harmonikaajtó vasalatok
Ajtóütközők
Fióksínek
Asztalosoknak
Főkategória
Bútorvasalatok
Tolóajtó szekrényekhez
Alsó vezetéses tolóajtó vasalatok
Terno Dama tolóajtó vasalatok
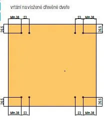
TERNO Dama vasalat szett közézáródó fa ajtóra csillapítással belső 30kg
Cikkszám
156886
Terméktípus
vasalat szett
További adatok
14 988
Ft
Egységár:
14 988
Ft/csomag
1
A termék elérhetőségéről kérlek érdeklődj ügyfélszolgálatunkon
Telefon: +36-1/300-9030
Email: info@vasalatwebshop.hu
A vásárlás után járó pontok:
450 Ft
Az alábbi terméket ajánljuk még kiegészítőként
Adatok
Márka
Terno Scorrevoli
Ráütődés
közézáródó
Mértékegység
csomag
Cikkszám
156886
697999|854153
Bútorvasalatok
460515|854153
Akciós termékek
712039|854153
Épület vasalatok
9999999525993|0
Fióksínek
9999999514698|0
Asztalosoknak
Ft (HUF)
EUR - €
A kosár üres.
Vásárláshoz kattintson ide!
Belépés
Email
Jelszó
Belép
Elfelejtettem a jelszavamat
Regisztráció